THE OFFICE SHOWROOM

The showroom is designed as a sleek, modern contemporary space that offers an engaging and seamless experience for clients exploring the developer’s projects.

Serving as both a sales hub and an information center, the showroom allows visitors to access all project details, visualize options, and finalize purchases in one cohesive environment.

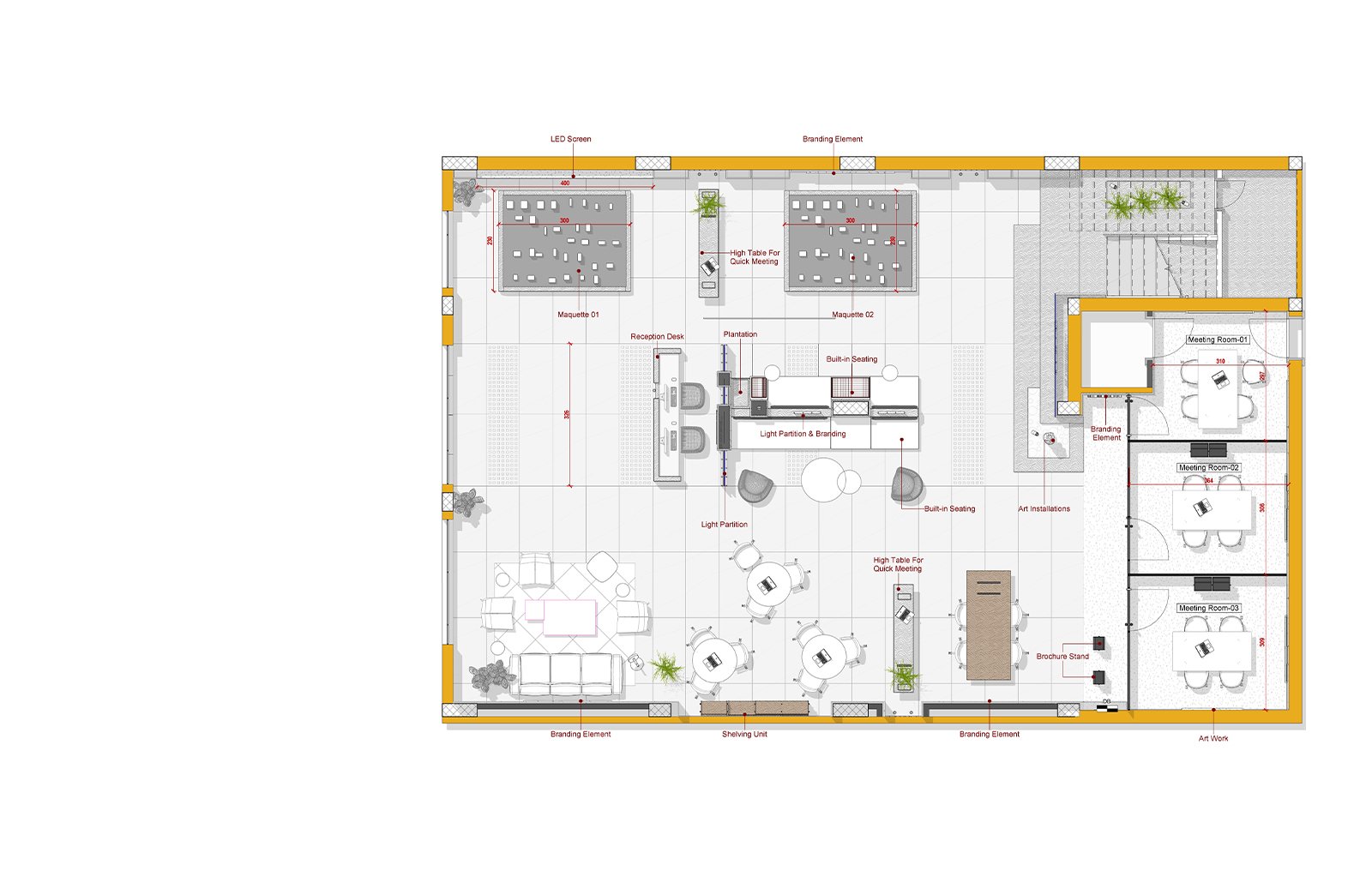
The space features a welcoming reception desk, two detailed project maquettes, multiple seating areas, and private meeting rooms, all carefully arranged to encourage interaction, discussion, and personalized consultations.

High-quality materials, clean lines, and subtle design accents create a refined, professional, and inviting atmosphere that reflects the developer’s commitment to excellence.

Thoughtful circulation and lighting guide clients effortlessly through the showroom, highlighting key displays while maintaining comfort and clarity. By combining functional layouts with a polished aesthetic, the showroom transforms the sales process into a smooth, inspiring journey, reinforcing trust, sophistication, and the modern vision of Khaled Sabry Developer.


Discipline: Interior Design

Sector: Commercial

THE OFFICE SHOWROOM

The showroom is designed as a sleek, modern contemporary space that offers an engaging and seamless experience for clients exploring the developer’s projects.

Serving as both a sales hub and an information center, the showroom allows visitors to access all project details, visualize options, and finalize purchases in one cohesive environment.

The space features a welcoming reception desk, two detailed project maquettes, multiple seating areas, and private meeting rooms, all carefully arranged to encourage interaction, discussion, and personalized consultations.

High-quality materials, clean lines, and subtle design accents create a refined, professional, and inviting atmosphere that reflects the developer’s commitment to excellence.

Thoughtful circulation and lighting guide clients effortlessly through the showroom, highlighting key displays while maintaining comfort and clarity. By combining functional layouts with a polished aesthetic, the showroom transforms the sales process into a smooth, inspiring journey, reinforcing trust, sophistication, and the modern vision of Khaled Sabry Developer.


Discipline: Interior Design

Sector: Commercial

LET’S DISCUSS YOUR PROJECT LET’S DISCUSS
YOUR PROJECT

LET’S TALK

EVERY PROJECT BEGINS WITH A CONVERSATION. WHETHER YOU HAVE A CLEAR VISION OR AN EARLY IDEA, WE’RE HERE TO LISTEN, EXPLORE POSSIBILITIES, AND DEFINE THE RIGHT DIRECTION TOGETHER. REACH OUT AND LET’S START SHAPING YOUR PROJECT.

©2026 | DESIGN SECTOR | ALL RIGHTS RESERVED
MADE BY THE CREATIVE TEAM

LET'S TALK.

LET'S TALK

PLEASE TELL US ABOUT YOURSELF — ONCE WE REVIEW YOUR INFORMATION, OUR TEAM WILL GET BACK TO YOU AS SOON AS POSSIBLE.

Thank you!