THE CONTEMPORARY VILLA

The villa’s interior has been carefully reimagined through a luxury Contemporary  approach, creating bright, elegant spaces that feel both welcoming and refined. The design reflects the client’s lifestyle by achieving a thoughtful balance between sophistication, comfort, and functionality, ensuring a timeless yet contemporary living environment.

High-quality materials, including wood and distinctive marble selections, are used throughout the interior to add warmth, texture, and a sense of understated luxury. These materials establish a cohesive design language that enhances the villa’s architectural character and visual depth.

Interior spaces are strategically planned to promote smooth circulation and a natural flow between rooms.
Selected zones are designed as relaxed luxury areas that support everyday living and social interaction.

Guest-facing areas are elevated with premium finishes, rich textures, and refined detailing, creating a formal and distinguished atmosphere. Carefully integrated statement elements serve as focal points, enhancing visual interest.

Discipline: Interior Design

Sector: Residential Villa

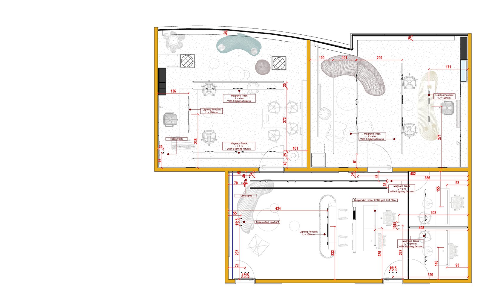
THE CONTEMPORARY VILLA

The villa’s interior has been carefully reimagined through a luxury Contemporary  approach, creating bright, elegant spaces that feel both welcoming and refined. The design reflects the client’s lifestyle by achieving a thoughtful balance between sophistication, comfort, and functionality, ensuring a timeless yet contemporary living environment.

High-quality materials, including wood and distinctive marble selections, are used throughout the interior to add warmth, texture, and a sense of understated luxury. These materials establish a cohesive design language that enhances the villa’s architectural character and visual depth.

Interior spaces are strategically planned to promote smooth circulation and a natural flow between rooms.
Selected zones are designed as relaxed luxury areas that support everyday living and social interaction.

Guest-facing areas are elevated with premium finishes, rich textures, and refined detailing, creating a formal and distinguished atmosphere. Carefully integrated statement elements serve as focal points, enhancing visual interest.

Discipline: Interior Design

Sector: Residential Villa

LET’S DISCUSS YOUR PROJECT LET’S DISCUSS
YOUR PROJECT

LET’S TALK

EVERY PROJECT BEGINS WITH A CONVERSATION. WHETHER YOU HAVE A CLEAR VISION OR AN EARLY IDEA, WE’RE HERE TO LISTEN, EXPLORE POSSIBILITIES, AND DEFINE THE RIGHT DIRECTION TOGETHER. REACH OUT AND LET’S START SHAPING YOUR PROJECT.

©2026 | DESIGN SECTOR | ALL RIGHTS RESERVED
MADE BY THE CREATIVE TEAM

LET'S TALK.

LET'S TALK

PLEASE TELL US ABOUT YOURSELF — ONCE WE REVIEW YOUR INFORMATION, OUR TEAM WILL GET BACK TO YOU AS SOON AS POSSIBLE.

Thank you!